Beispielwohnung | 3-Zimmer-Wohnung Neubau Waisenstraße

15907 Lübben (Spreewald), Waisenstraße 3A und 3B
ca. 1.450-1.500 € zzgl. PKW-Stellplatz: 100 € €
Warmmiete
76 m²
Fläche
Objektbeschreibung

Wir freuen uns, Ihnen hier exklusiv diese großzügig und durchdacht geschnittene 3-Zimmer-Wohnung mit Stil auf ca. 76 m² Wohnfläche im schönen Lübben in ruhiger und dennoch zentraler Ortslage vorstellen zu dürfen.

Die vorgestellte Einheit wurde mit viel Liebe zum Detail und hochwertigen Materialien im 1. Quartal 2025 fertiggestellt und steht zum Erstbezug zur Verfügung.

In der 2. Etage eines besonders energieeffizienten, nach KFW55-Förderprogramm realisierten, Mehrfamilienhauses mit zwei Wärmepumpen und einer modernen Photovoltaikanlage gelegen, erreicht man die Wohnung bequem per Fahrstuhl.

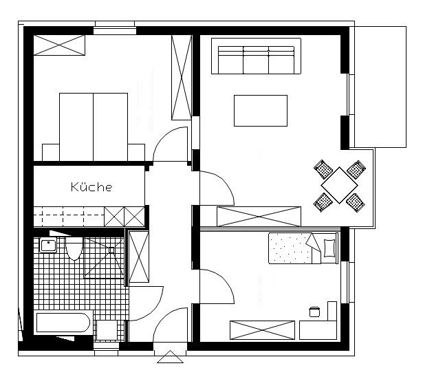
Sie verfügt über 3 gut geschnittene Zimmer zur freien Aufteilung, einen sonnigen Balkone, eine Küche, ein modern gefliestes Tageslichtbad mit Wanne und Dusche sowie über ein eigenes Kellerabteil und einen Stellplatz in der großen Tiefgarage.

Einfach einziehen und wohlfühlen!

Gerne stellen wir Ihnen die schöne Wohnung bei einem persönlichen Besichtigungstermin vor Ort vor. Wir freuen uns auf Ihre Anfrage!

 +++ Schauen Sie sich gerne für einen guten ersten Eindruck den virtuellen Rundgang an aus Januar 2025! +++

Ausstattung
  • 2025 fertiggestelltes Mehrfamilienhaus „Quartier Waisenstraße“ mit 17 Einheiten
  • im Rahmen des KfW55-Förderprogrammes nach höchsten Energieeffizienzstandards mit zwei Wärmepumpen und Photovoltaikanlage errichtet sowie mit einem Gründach
  • alle Wohnung sind barrierearm, größtenteils schwellen- und stufenlos und bequem mit dem Aufzug erreichbar
  • modernes Dreifach-Isolierglas für gute Wärmedämmung und Schallschutz in den zeitgemäßen Kunststoff-Fensterrahmen
  • praktische passive Raumbelüftung durch so genannte Zwangsbelüftungsschlitze
  • pflegeleichter Vinylboden in Holzoptik in allen Wohnräumen und im Flur
  • elektrische Rollläden
  • Fußbodenheizung mit Thermostat in allen Räumen
  • überdurchschnittliche Deckenhöhen für mehr Licht und Luft mit 2,50 m in der gesamten Wohnung
  • großzügig geschnittene 3-Zimmer-Wohnung mit ca. 76 m² mit Küche und Bad zuzüglich Balkon
  • weitläufiges Wohnzimmer mit ca. 2,2 m breitem Erker mit bodentiefer Fensterfront auf insgesamt ca. 23 m² sowie direktem Zugang zum sonnigen Süd-Ost-Balkon mit ca. 5 m² mit schöner Aussicht auf den attraktiv gestalteten, grünen Innenhof
  • ca. 16 m² großes Schlafzimmer zum Hinterhof ausgerichtet
  • Zimmer 2 auf ca. 13 m² mit Blick auf die Bergstraße zur freien Aufteilung
  • Küche mit genügend Platz für Ihre Einbauküche und die Spülmaschine – die Küche selbst hat kein Fenster aber eine spezielle Abluft sowie ein offenes Raumkonzept
  • modern sowie stilvoll gefliestes Tageslichtbad auf ca. 9 m² mit Fenster, Badewanne, bodengleicher Dusche mit dem Sondermaß 1,20x1,20 m, Handtuchheizkörper, Waschtisch, Marken Armaturen sowie einem Waschmaschinenanschluss und Platz für den Trockner
  • geräumiger Flur mit Platz für eine Garderobe auf ca. 8 m²
  • einbruchshemmende Wohnungseingangstür mit Türsummer
  • eigenes, geräumiges Kellerabteil für zusätzlichen Stauraum
  • abschließbarer Fahrradraum für alle Mieter
  • Tiefgaragenstellplatz mit elektrischem Tor und Vorbereitung für eine Wall-Box oder Außenstellplatz gegen angemessene Stellplatzmiete verfügbar
Lage

Ruhig mit Grünblick und dennoch zentral und gut angebunden liegt das moderne Mehrfamilienhaus in einer hübschen Wohnstraße unweit des Hains, der grünen Lunge Lübbens. Die gemütliche Gegend ist geprägt von altehrwürdigen Stadtvillen, Einfamilienhäusern, anderen Wohngebäuden mit Altbaucharme und Gärten.

Die Dinge des täglichen Bedarfs liegen in direkter, fußläufiger Nachbarschaft. So erreicht man das Lübbener Stadtzentrum und den Marktplatz bequem in 15 Gehminuten mit diversen Einkaufsmöglichkeiten (Aldi, Edeka), Arztpraxen, Kindertagesstätten, Schulen, den Post-Shop, Bekleidungsgeschäfte, Restaurants, Cafés und Schulen. Eine Bäckerei, ein Aldi, eine Apotheke, ein Getränkemarkt, ein DHL Post-Shop sowie mehrere Friseursalons befinden sich sogar direkt vor der Tür oder nur 5 Minuten entfernt.

Die Spreewaldklinik, das kommunale MVZ, mehrere Arztpraxen sowie Apotheken sind in wenigen Gehminuten erreichbar.

Der Regionalbahnhof Lübben (RE7, RE2, Bahn IC) bietet eine zuverlässige und schnelle Anbindung an die nahe gelegenen Großstädte Berlin, Cottbus und Dresden und ist nur 2 km entfernt. Direkt an der Bahnhofstraße liegen mehrere Bushaltestellen der Linien 472, 502, 506, 511, 512, 516 und 601 nach unter anderem Luckau, Burg und Lübbenau. Der nahegelegene Autobahnanschluss an die A13 bietet eine perfekte Ausgangslage für das unkomplizierte Pendeln ins Umland und nach Berlin.

Das Tropical Islands liegt 22 km entfernt, der nächstgelegene Flughafen ist der Flughafen Berlin Brandenburg mit etwa 62 km Entfernung.

Interessentenbogen

Falls keine/r, bitte mit 0 ausfüllen
Welche Art? Kleintiere ausgenommen. Falls keine, bitte mit 0 ausfüllen.
Bevorzugte Art der Kontaktaufnahme*

Ihre Suchkriterien zur Wunschwohnung:

Anzahl Zimmer*
Wohnfläche*
Etagen*
Gesamtmietpreis (je Monat)*

Allgemein:*

Badausstattung:*

Bauweise:*

Lage in Lübben (Spreewald):*

Wie sind Sie auf uns aufmerksam geworden:*



Einverständniserklärung



Ich bin mit der Erhebung, Speicherung und Nutzung der vorstehenden personenbezogenen Daten sowie der besonderen Arten personenbezogener Daten einverstanden. Die Daten werden ausschließlich für den vorgesehenen Zweck von den Betreibern dieser Webseite genutzt und nicht unberechtigt an Dritte weitergegeben.

Der Nutzung meiner Daten kann ich jederzeit widersprechen. (* Pflichtfeld)

Wir verarbeiten Ihre Daten zum Zwecke der Erstellung von Wohnungsangeboten und Durchführung von Wohnungsbesichtigungen. Ihre Suchkriterien dienen dem Auffinden von zu Ihren Kriterien passenden Wohnungsangeboten.

Ihre Kontaktdaten dienen dem Versenden von Angeboten und der Kontaktaufnahme zur Abstimmung von Besichtigungsterminen. Spätestens sechs Monate nach Abgabe des Interessentenbogens durch Dateneingabe auf der Website, Eingang per Post, Fax oder E-Mail werden die Daten vollständig gelöscht. Zwingende gesetzliche Bestimmungen – insbesondere gesetzliche Aufbewahrungsfristen – bleiben unberührt.

Datenschutzerklärung und Widerspruchhinweise

Mit * makierte Felder sind Pflichtfelder.

Hier finden Sie uns!

Lübbener Wohnungsbaugesellschaft mbH
Bahnhofstr. 37
15907 Lübben (Spreewald)

Telefon: 03546 27400
E-Mail: info@luebbener-wbg.de

   

Sprechzeiten:
Di: 9:00 - 12:00 und 13:00 - 17:00 Uhr
Do: 13:00 - 15:00 Uhr